THE STEADING, NORTH END FARM, LONGFRAMLINGTON
A small collection of architect-designed homes where traditional materials and contemporary design sit in effortless balance with the Northumberland landscape.
The Steading has been conceived with that understanding at its core. Natural stone, dark timber cladding and strong pitched rooflines echo the site's agricultural heritage, while expansive glazing frames long-distance countryside views and open-plan interiors connect seamlessly to private terraces and gardens.
SPECIFICATION
CONSTRUCTION & exterior
Natural random stone walling mixed with a dark Thermowood cladding (The Brinkburn, The Simonside and The Callaly)
Dark Thermowood vertical cladding (The Thrunton and The Whitton)
Spanish slate roof coverings
Solar PV panels installed (The Brinkburn, The Simonside and The Callaly)
Aluminium double-glazed windows and external doors
Oak veneer internal doors with black ironmongery
INTERIOR FINISHES
Engineered wood flooring to ground flool
Porcelain tiled bathroom and en-suite floors
Tiled shower enclosures
Contemporary painted plasterboard walls
kitchen & utility
Fitted kitchen cabinetry
Quartz worktops
Integrated AEG appliances including induction hob, oven, combi-oven, dishwasher and fridge freezer
Utility rooms fitted with cabinetry and quartz work surfaces (where applicable)
Upgrades available from the standard specification at the buyer’s cost
Bathrooms & WCs
Contemporary sanitaryware
Walk-in showers with glazed screens
Vanity units with wall-mounted taps
Heated towel rails and underfloor heating
Lighting & Electrical
LED downlighting throughout
External lighting
Fibre broadband connection provision
WIFI access points installed
Heating & Energy Efficiency
Underfloor heating to ground floor
Radiators to first floor
Mitsubishi air-source heat pump system
Predicted EPC rating of ‘A’ or ‘B’ depending on plot
Electric vehicle charging point provided
Landscaping
Block paved driveways
Lawned gardens
Grey sandstone patios and perimeter paths
Post-and-rail fencing to field boundaries
Close-boarded fencing between plots
FLOORPLANS & specification
All our properties are built to the highest standard and come with a 10 year structural warranty. These stone-built homes come with fully fitted kitchens and immaculate bathrooms with high quality sanitaryware. Each with highly efficient, sustainable air source heat pumps that provide the hot water and heating throughout. Our homes have wooden herringbone floors throughout the ground floor with feature log burner to the living rooms for the added country style.
Off plan reservation provides an opportunity to choose a personal colour palette.
The full specification can be downloaded from the link below.
The Callaly
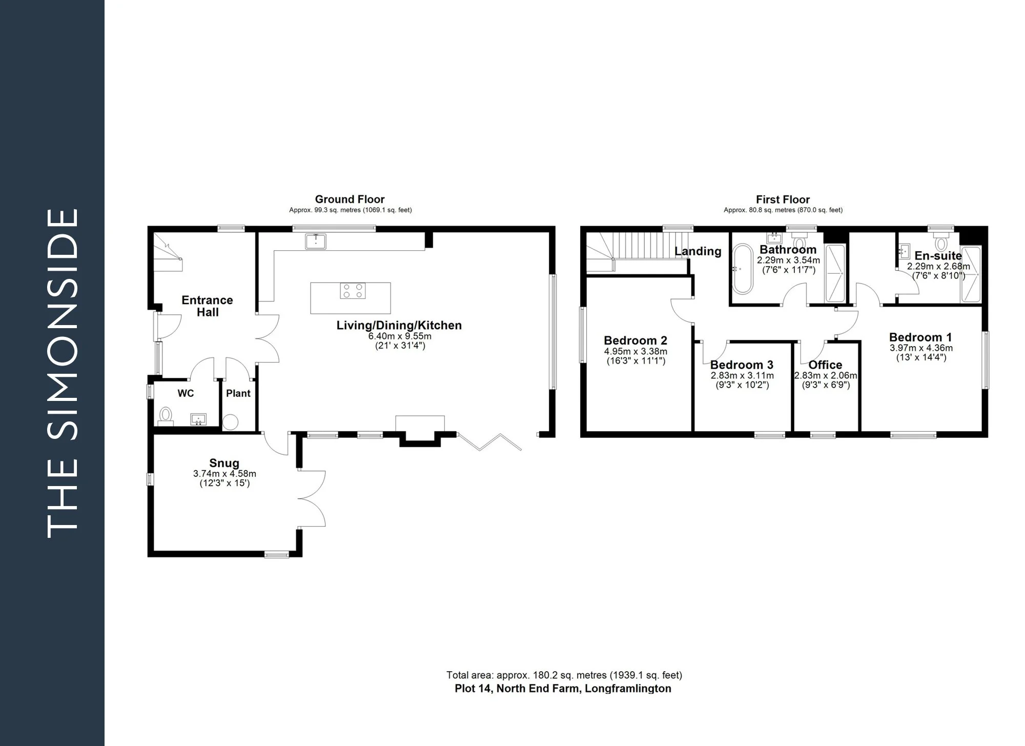
The Simonside
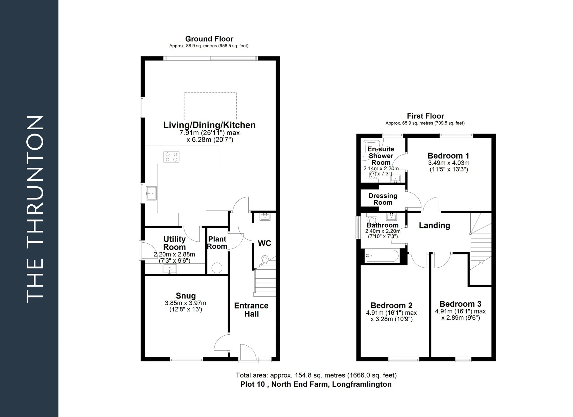
The Thrunton
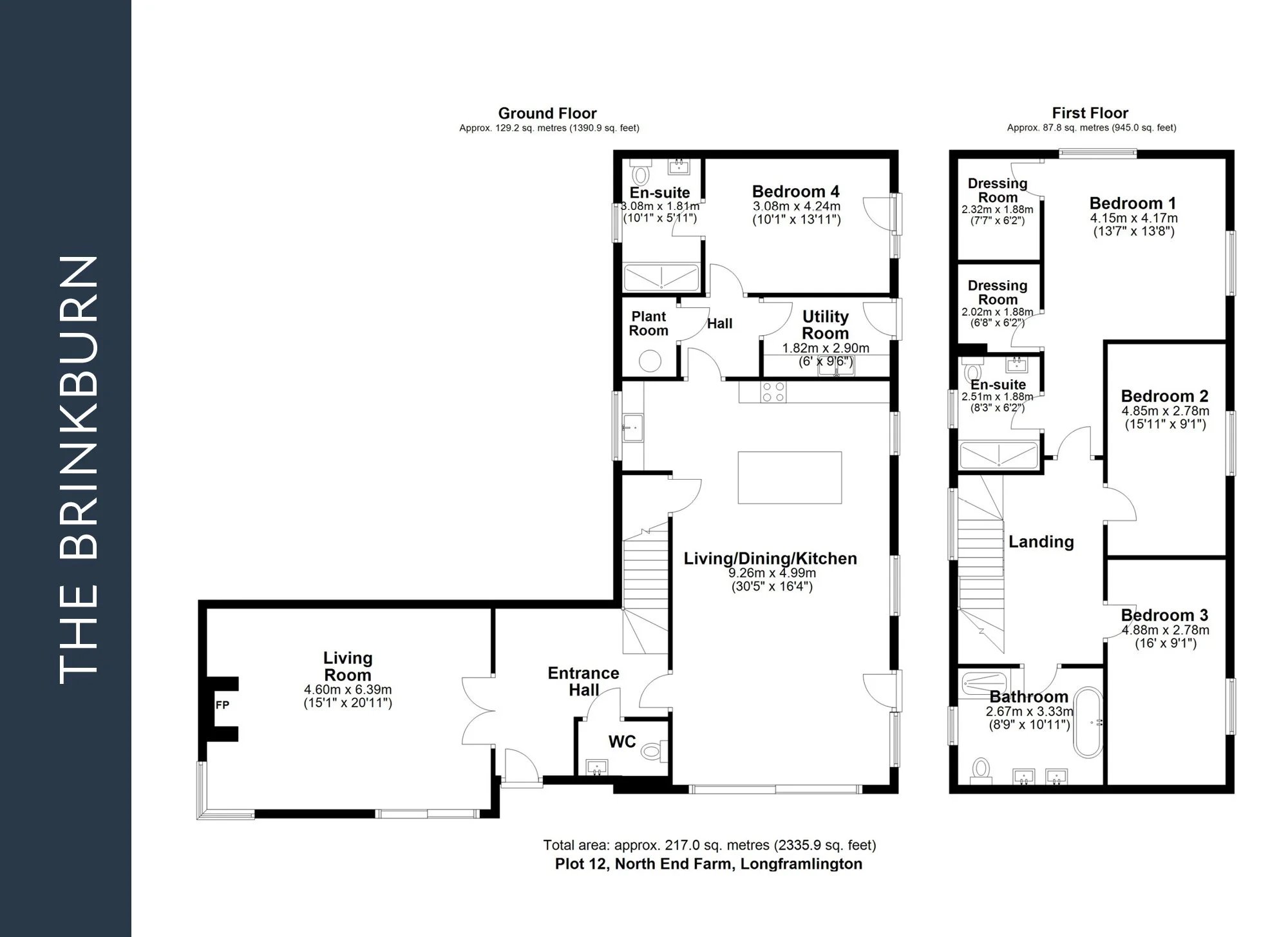
The Brinkburn
The Whitton

